| Esto es solo un ejemplo o indicación, no se pueden derivar derechos de esta información.Para obtener los costos reales de esta propiedad francesa, por favor complete el formulario anterior. | |
| Gastos notariales e impuestos Al precio actual de venta / pagado solo una vez. |
€ 29.702 |
| Impuesto sobre bienes inmuebles Estimado |
Estimado entre € 820 y € 2.870 |
| Impuesto sobre vivienda Estimado |
Estimado entre € 820 y € 2.050 |
| Seguro | Desde 165 euros al año |
| Energía, depende de su consumo Una suscripción de3KW en EDF es de aproximadamente70 € al año, además paga los costos de uso. |
|
| Agua, depende de su consumo y puede variar por municipio (consulte en el municipio). | |
| Aguas residuales, depende de su consumo de agua y puede variar por municipio (consulte en el municipio). Si no hay sistema de alcantarillado disponible, compruebe si el tanque séptico actual está al día. Si no, debe ser reemplazado. Para la instalación de un nuevo tanque séptico, cuente con unos 7.000 y 11.000 euros. Más información sobre el tanque séptico aquí (en francés). |
|
| Calefacción, depende de su consumo y del método de calefacción (madera, gasóleo, eléctrico, etc.). | |
Quiero más información sobre esta propiedad
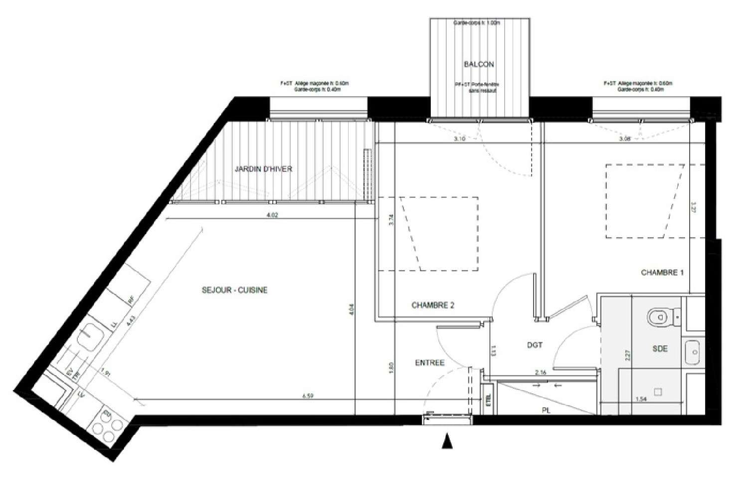
apartamento Montreuil, Seine-Saint-Denis,
referencia: 340936988176
otras casas cercanas
apartamento Paris 18e Arrondissement
Paris (Seine)
a 5 km
€ 291.500
apartamento Paris 18e Arrondissement

