terreno en venta ciudad Brouqueyran

Comprar terrenos en Brouqueyran. Ciudad Brouqueyran se encuentra in provincia Nueva Aquitania, in antigua provincia Aquitaine, in región Gironde. Actualmente Franimo tiene un 2 terrenos en venta en Brouqueyran. Se pueden visualizar en un total de 1 página.

2 terrenos

página 1 de 1

terreno Brouqueyran

(Gironde)

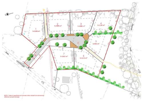
Brouqueyran Gironde terreno foto 7206974
85 000 € - -

Buena oportunidad en Brouqueyran por un precio de sólo 85000 euros. Terreno en venta en Brouqueyran. Se vende terreno...

terreno Brouqueyran

(Gironde)

Brouqueyran Gironde terreno foto 7206972
78 000 € - -

Con una superficie de 1015 m2 este terreno se encuentra en la región de Nueva Aquitania. Buena oportunidad en...

No hay más inmuebles.